产品名称: 空气加热器
产品类别: DYK系列除灰、脱硫空气电加热装置
|
型号 |
功率KW |
空气容量m’/min |
进出口通径mm |
|
DYK-H-10 |
10 |
2 |
80 |
|
DYK-H-15 |
15 |
3 |
80 |
|
DYK-H-20 |
20 |
4 |
80 |
|
DYK-H-30 |
30 |
7 |
100 |
|
DYK-H-45 |
45 |
10 |
100 |
|
DYK-H-60 |
60 |
12 |
100 |
|
DYK-H-80 |
80 |
16 |
150 |
|
DYK-H-90 |
90 |
18 |
150 |
|
DYK-H-100 |
100 |
20 |
150 |
1.输入电源380V三相四线
2.设计压力≤0.5MP
3.控制精度≤±1℃
4.温控范围0-400℃
5.远程监控信号:
(a)开关量:故障报警输出
(b)模拟量:温度反馈信号输出{4-20mA}
6.控制柜外形尺寸:1800(高)×700(宽)×500(厚)
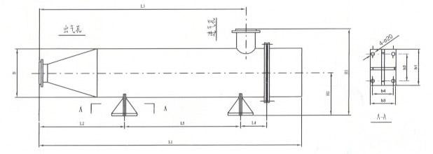
·电加热容器外形图表
|
型号 |
H1 |
H2 |
L1 |
L2 |
L3 |
L4 |
D |
B1 |
B2 |
B3 |
B4 |
|
|
DYK-H-10 |
585 |
295 |
2130 |
585 |
1675 |
250 |
219 |
260 |
220 |
|
|
|
|
DYK-H-15 |
585 |
295 |
2130 |
585 |
1675 |
250 |
273 |
260 |
220 |
|
|
|
|
DYK-H-20 |
640 |
320 |
2180 |
630 |
1720 |
250 |
273 |
280 |
240 |
220 |
180 |
|
|
DYK-H-30 |
670 |
335 |
2190 |
640 |
1730 |
250 |
325 |
300 |
260 |
220 |
180 |
|
|
DYK-H-45 |
692 |
346 |
2230 |
680 |
1770 |
250 |
377 |
320 |
280 |
220 |
180 |
|
|
DYK-H-60 |
728 |
364 |
2280 |
730 |
1820 |
250 |
426 |
340 |
300 |
220 |
180 |
|
|
DYK-H-80 |
730 |
365 |
2280 |
730 |
1820 |
250 |
426 |
360 |
320 |
220 |
180 |
|
|
DYK-H-90 |
774 |
387 |
2340 |
790 |
1880 |
250 |
480 |
400 |
360 |
240 |
180 |
|
|
DYK-H-100 |
774 |
387 |
2340 |
790 |
1880 |
250 |
480 |
400 |
360 |
240 |
220 |
|