产品名称: 空气加热器及温度控制系列
产品类别: DYK系列除灰、脱硫空气电加热装置
YK系列电站除灰、脱硫、脱硝系统用空气电加热设备由电加热容器含不锈钢管状加热器(含测温元件)、风机和控制系统等部分组成。是干式除灰系统中不可缺少的配套设备,能有效保持干灰在气力输送系统中的气化、流畅。在脱硫系统中用于风门的密封风的加热。该产品适用于电站空气斜槽、电除尘器灰斗气化和灰库气化、烟气脱硫、脱硝领域。
技术特点
·进口高温钼铬电阻丝、进口结晶氧化镁绝缘填料使加热器寿命长、热效高。
·温控调节器为日本富士X系列产品,采用先进专家型控制软件(MRT),使控制系统可靠、稳定。
技术指标
·控制柜型号规格表
|
型号 |
输出功率KW |
|
|
DYK-K-20 |
10-20 |
|
|
DYK-K-60 |
30-60 |
|
|
DYK-K-100 |
80-100 |
|
·电加热容器型号规格表
|
型号 |
功率KW |
空气容量m’/min |
进出口通径mm |
|
|
DYK-H-10 |
10 |
2 |
80 |
|
|
DYK-H-15 |
15 |
3 |
80 |
|
|
DYK-H-20 |
20 |
4 |
80 |
|
|
DYK-H-30 |
30 |
7 |
100 |
|
|
DYK-H-45 |
45 |
10 |
100 |
|
|
DYK-H-60 |
60 |
12 |
100 |
|
|
DYK-H-80 |
80 |
16 |
150 |
|
|
DYK-H-90 |
90 |
18 |
150 |
|
|
DYK-H-100 |
100 |
20 |
150 |
|
·公共参数:
1.输入电源380V三相四线
2.设计压力≤0.5MP
3.控制精度≤±1℃
4.温控范围0-400℃
5.远程监控信号:
(a)开关量:故障报警输出
(b)模拟量:温度反馈信号输出{4-20mA}
6.控制柜外形尺寸:1800(高)×700(宽)×500(厚)
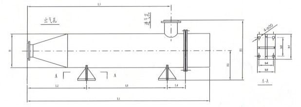
·电加热容器外形图表
|
型号 |
H1 |
H2 |
L1 |
L2 |
L3 |
L4 |
D |
B1 |
B2 |
B3 |
B4 |
|
|
DYK-H-10 |
585 |
295 |
2130 |
585 |
1675 |
250 |
219 |
260 |
220 |
|
|
|
|
DYK-H-15 |
585 |
295 |
2130 |
585 |
1675 |
250 |
273 |
260 |
220 |
|
|
|
|
DYK-H-20 |
640 |
320 |
2180 |
630 |
1720 |
250 |
273 |
280 |
240 |
220 |
180 |
|
|
DYK-H-30 |
670 |
335 |
2190 |
640 |
1730 |
250 |
325 |
300 |
260 |
220 |
180 |
|
|
DYK-H-45 |
692 |
346 |
2230 |
680 |
1770 |
250 |
377 |
320 |
280 |
220 |
180 |
|
|
DYK-H-60 |
728 |
364 |
2280 |
730 |
1820 |
250 |
426 |
340 |
300 |
220 |
180 |
|
|
DYK-H-80 |
730 |
365 |
2280 |
730 |
1820 |
250 |
426 |
360 |
320 |
220 |
180 |
|
|
DYK-H-90 |
774 |
387 |
2340 |
790 |
1880 |
250 |
480 |
400 |
360 |
240 |
180 |
|
|
DYK-H-100 |
774 |
387 |
2340 |
790 |
1880 |
250 |
480 |
400 |
360 |
240 |
220 |
|

脱硫系统用空气加热设备可根据客户及设计院的设计制造,本公司也可按客户要求设计制造。